Housing Infill

A modular, incremental model for urban housing

Housing Infill

A modular, incremental model for urban housing

Housing Infill is a dwelling prototype with a compact, flexible and adaptable construction model proposed for the city of Córdoba in Argentina where housing demand is constantly challenged by the scarcity and high cost of land.

A modular structure for these units ensures that homes will remain suited to different users over time, providing an affordable, eco-friendly solution that lasts. The solution can be adapted for other cities, thereby solving the problem at scale.


The scheme proposes a compact and dense urban fabric, made up of multiple cubes, each 16 m2 in area.
© Holcim Foundation for Sustainable Construction

The primary strength of the prototype is that it works with dense urban conditions that otherwise have little room for large-scale interventions. In the city of Córdoba, for instance, there are many available small land parcels. Here, compactness and ease of assembly are necessary strategies as they permit optimisation of land use without disturbing existing urban fabric.

By proposing insertions within urban centres, the architects also envision the regeneration of neighbourhoods.

Exploring incrementalism

The modularity of the proposed system enables expansion, addressing the changing needs of growing families.

Designed as agglomerations of 16 m2 cubes, each home starts with 64 m2 and is able to expand to 128 m2. The trade-off is that these units, though malleable, do not offer a strong spatial hierarchy, which is commonly seen in residences.


A summary of the form logic of the prototype, showing urban fit, flexibility and environmental design.
© Holcim Foundation for Sustainable Construction

Each 4 by 4 m cube includes services in its perimeter. This ‘thick’ facade is a functional and climactic filter between indoors and outdoors.


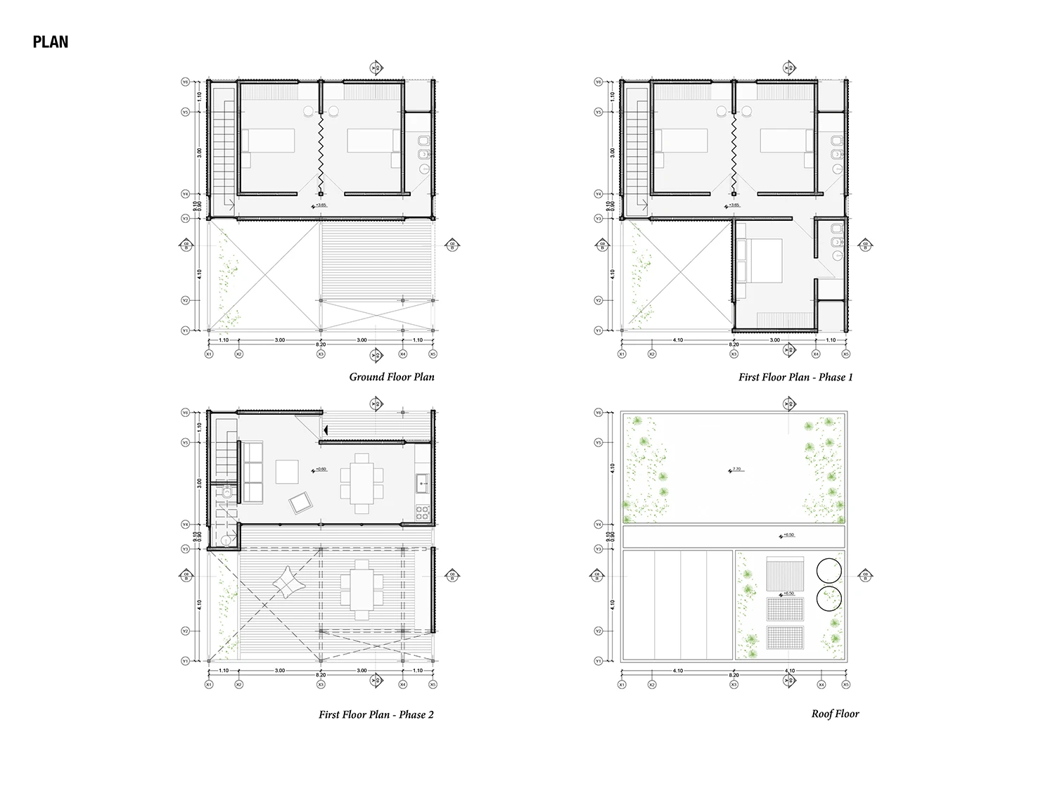
The plans show the organisation of functional spaces over two phases.
© Holcim Foundation for Sustainable Construction
Using low-cost and recyclable materials and techniques

The prototype is built with wood, a recyclable natural resource that can be extracted through simple, low-cost and low-impact processes. Small wood sections are used to reduce waste.


Materials used in construction include wood, a local material which has low carbon emissions.
© Holcim Foundation for Sustainable Construction

Each home will deploy active and passive systems to create comfort indoors. Landscaped roofs and cross ventilation allow for pleasant thermal conditions at low energy costs. Additionally, rainwater collection and greywater recycling systems are incorporated to conserve water.

In the wider context of Latin America, the demand for affordable housing in urban centres is high. However, most housing proposals do not sufficiently account for growth or urban context, creating to obsolescence and congestion.

Through its compact and modular design, Housing Infill provides an alternative approach that meets present and future needs in ways that are human-centric and sustainable.

The design for Housing Infill in Argentina was awarded the Acknowledgement Prize at the 2020-21 Holcim Awards for Latin America.

Post sponsored by the Holcim Foundation for Sustainable Construction

An Ideas project is typically unbuilt but offers noteworthy ideas about sustainable design and construction. It can be a competition entry that was never constructed, an experimental prototype of a facade system or a concept the design of future cities.

Gallery

Fact Sheet

Disclaimer: Location provided as reference only. Exact site may differ.

Under the Köppen climate classification, these are ‘C’ climate types. Temperate climates have mild winters and summers where the average in the warmest month is higher than 10° C and the coldest does not drop below 0° C. This climate is common in coastal regions.

There are no performance metrics available for this project.

Architects
Tomás Quaglia
Agustin Berzero
Emilia Darricades
Maximiliano Torchio
Valeria Jaros

Recommended blog posts

As land in cities becomes scarce and expensive, public spaces are bearing the brunt. Can new models of urban development reconcile communal needs with profit?
In a warming, anxious world, can buildings heal both mind and planet? Unpack how wellbeing is reshaping sustainable architecture from the inside out.

Images

Follow us on

Post categories

Recent blog posts

Recent podcast episodes

Recommended blog posts

Recommended podcast episodes

In a warming, anxious world, can buildings heal both mind and planet? Unpack how wellbeing is reshaping sustainable architecture from the inside out.

Leave a comment

Before posting, please review our comment policy here.